2339 Market
San Franciscan’s take a lot of pride in the Castro. Freethinkers and non-conformists put this colorful area on the map – making it a tourist attraction for throngs of pilgrims and revelers from all over the world. Plunge into the welcoming mix – beautiful homes, safe streets and thriving nightlife make the Castro a classic.
Building Facts
Year Built: 1912Residential Units: 12
Stories: 3
Neighborhood: Castro
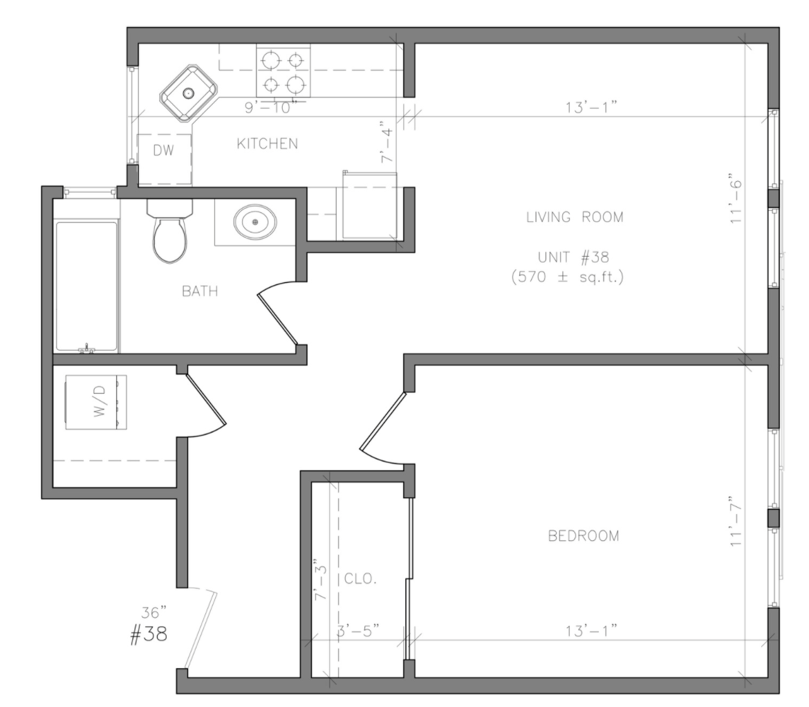
View Example Floorplans Building Amenities
Controlled Access/Gated
High Speed Internet
Historic Building
Laundry Facilities
Public Transportation
Pet Friendly
Recycling
Rent-Controlled
Secure Amazon Entry






