55 Genoa
Mangia! North Beach is San Francisco’s “Little Italy.” This bohemian bastion has Beatnik written all over it. Retrace Kerouac’s head-trip at Vesuvio’s, marvel at Specs’ eternal ephemera exhibit, or get liquid inspiration with the O.G. locals at Gino and Carlo’s. Tourist gems like Coit Tower, Beach Blanket Babylon and old-school Italian eateries are this area’s bread and butter. Broadway’s neon-lit burlesque adds a little sultriness to the atmosphere.
Building Facts
Year Built: 1959Residential Units: 6
Stories: 4
Neighborhood: North Beach
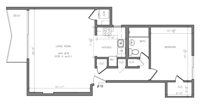
View Example Floorplans Building Amenities
Controlled Access/Gated
Historic Building
Public Transportation
Pet Friendly
Recycling
Rent-Controlled



