686 Post
Come play after a long day in Lower Nob Hill – where wine bars, sushi bistros and music venues are aplenty. Ditch the cab and walk to it all, including work, so you can have more free time to lounge in your light, bright and comfy abode with hardwood floors, washer/dryer, and a big, spacious kitchen, bedroom and bathroom.
Building Facts
Year Built: 1923Residential Units: 21
Stories: 6
Neighborhood: Lower Nob Hill
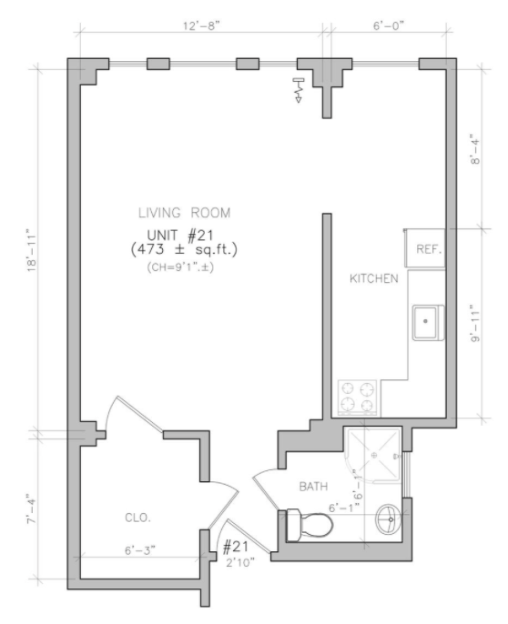
View Example Floorplans Building Amenities
Controlled Access/Gated
Elevator
High Speed Internet
Historic Building
Public Transportation
Pet Friendly
Recycling
Rent Controlled





