99 Lupine
Live less than a mile from the Presidio in this lovely Laurel Heights neighborhood. Alta Plaza Park is nearby as well with excellent areas for dog walking and taking in the views. This ideally located apartment has gorgeous hardwood floors, a gas range, and a washer and dryer in the unit. Be close to the bay, the ocean, and downtown.
Building Facts
Year Built: 1957Residential Units: 25
Stories: 4
Neighborhood: Laurel Heights
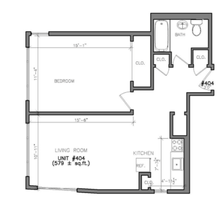
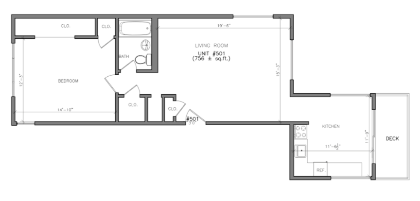
View Example Floorplans Building Amenities
High Speed Internet
Laundry Facilities
Public Transportation
Pet Friendly
Recycling
Rent-Controlled








