1240 Bush Building Photo 1
1240 Bush Building Photo 2
1240 Bush Building Photo 3
1240 Bush Building Photo 4

1240 Bush

Lower Nob Hill has a casual, laid-back feel and tons of overlap appeal. Polk Street’s bar scene, Union Square shopping, FiDi business buzz, and of course, Nob Hill’s polished heights, are easy excursions from this central neighborhood. There’s also plenty within stumbling distance of your doorstep. Take your bromance for happy hour beers at Bacchus, ditch your diet at Pearl’s Deluxe Burgers or ease into a mid-week decompression session at Resolute’s “winemaker Wednesdays.” Taking it easy in Lower Nob Hill is a no-brainer.


Building Facts
Year Built: 1914
Residential Units: 15
Stories: 3
Neighborhood: Lower Nob Hill
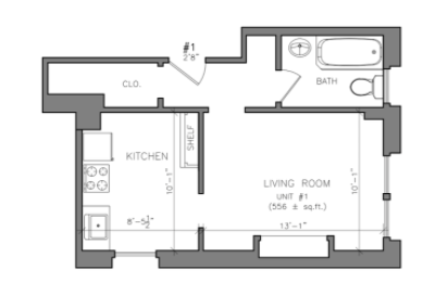
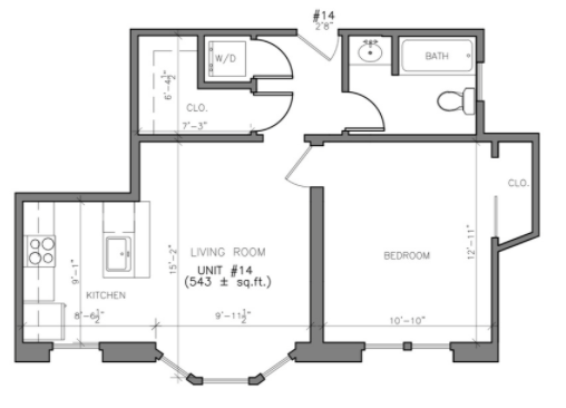
Floor PlansView Example Floorplans
Floor Plans 2Floor Plans 3Floor Plans 4

Building Amenities

Courtyard
Historic Building
Laundry Facilities
Public Transportation
Pet Friendly
Recycling

Building Amenities

Courtyard
Historic Building
Laundry Facilities
Public Transportation
Pet Friendly
Recycling

1240 Bush Apartment Tours

1240 Bush in Lower Nob Hill

Walk Score

Walk Score of 1240 Bush San Francisco CA Transit Score of 1240 Bush San Francisco CA Bike Score of 1240 Bush San Francisco CA 94108

Nearby Buildings with Available Apartments