455 Hyde
455 Hyde is a towering presence in the heart of San Francisco’s historic Tenderloin. Balancing a historic past and vibrant present, the 11-story building is full of contemporary amenities and home to a beautiful, monumental public art project unlike anything else in the city.
While it is listed in the National Register of Historic Places as part of the Uptown Tenderloin Historic District, this circa-1920’s high-rise exists fully in the present, with residents enjoying modern amenities like on-site laundry, an elevator, and more. Its exterior walls are the canvas for an iconic series of murals from local art studio Ink Dwell. One Monarch and Five Families are part of the studio’s Migrating Mural series, raising awareness for declining butterfly populations on a grand scale (and in dazzling color).
Centrally located 455 Hyde offers easy access to the rest of San Francisco and beyond, with a 98 Walk Score, 100 Transit Score, and 93 Bike Score. Numerous BART and Muni stops are easily accessible, as are commuter shuttles on Van Ness. Close to Union Square shopping, Polk Street bars, Sergeant John Macaulay Park and Tenderloin Children’s Playground, and some of the city’s best restaurants and entertainment, 455 Hyde puts you in the middle of the action.
Building Facts
Year Built: 1926Residential Units: 43
Stories: 11
Neighborhood: Tenderloin
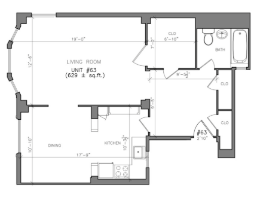
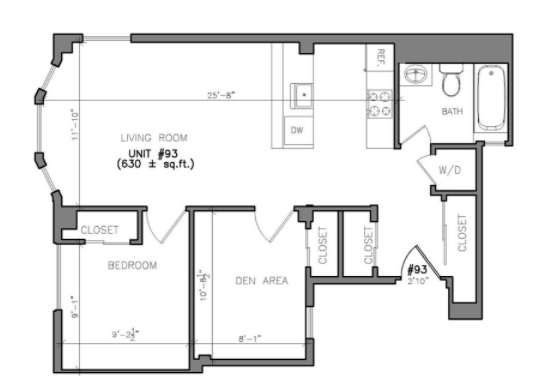
View Example Floorplans Building Amenities
Elevator
Historic Building
Laundry Facilities
Monkeybrains High Speed Internet Available
Public Transportation
Pet Friendly
Recycling
Rent Controlled
Secure Amazon Entry











